Err

GARAGE PALMAKO ROGeR 28.4 M² 44 mm AVEC PORTE SECTIONNELLE

PALMAKO
(Code: 102403)
Disponible chez le fournisseur
Livré sous 6 semaines.
JE CHOISIS LE TRAITEMENT (COULEUR) :
8.084,00 €
1000g
Marin Eco Bois – spécialiste des abris, carports, garages bois et toitures acier depuis 2007
Abris de jardin bois, carports, garages, pergolas et tôles imitation tuiles. Nous sélectionnons des produits robustes et durables pour tous vos aménagements extérieurs, avec livraison partout en France.
  • Conseils personnalisés avant et après commande.
  • Livraison sur rendez-vous à domicile.
  • Dépôt et service client basés en Dordogne (Marsac-sur-l'Isle).
Une question sur la dimension, le montage ou la livraison ?
Contactez-nous au 05 53 53 78 02.
livraison rapide

Livraison rapide

Paiement 100% sécurisé

Paiement 100% sécurisé

produit en stock

Produits en stock  


  1. #Description détaillée#

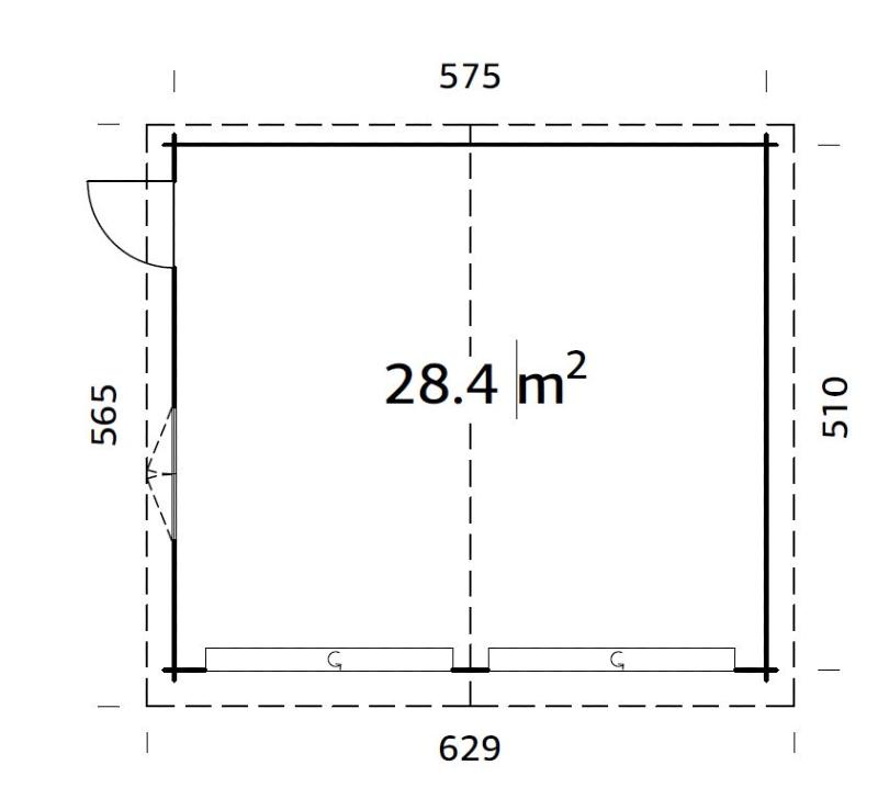
    Dimensions garage 28,4 m² épaisseur 44 mm:

     

    Dimensions madriers (largeur x profondeur) : 595 x 530 cm = 31,5 m²

    Dimensions extérieures paroi (largeur x profondeur) : 575 x 510 cm=  29,3 m² 

    Dimensions intérieures au sol (largeur x profondeur) : 566 x 501 cm = 28,4 m²

    Dimensions hors tout (largeur x profondeur) : 629 x 565 cm =  35,5 m²

    Épaisseur des murs : 44 mm double rainure

    Hauteur paroi : 217 cm

    Hauteur faitage : 310 cm

     

    Charpente

     

    Type de toit : Voliges (lambris) 19 mm

    Pannes : robustes en lamellé collé

    Pente du toit : 16,8 °

    Superficie du toit : 36,8 m²

    Revêtement : en option

    Débordement toiture : Avant : 25 cm; arrière : 20 cm Cotés: 25 cm

     

     

    Menuiseries

     

    Type porte : 2 portes sectionnelles en façade et 1 porte simple de service avec serrure 3 clés

    Vitrage des portes et fenêtre: double vitrage 3-6-3 mm

    Dimensions utiles d'une porte sectionnelle : 221 x 188 cm et de service : 73 x 175 cm
    Seuil de porte : plat et couvert en inox
    Type fenêtre : ouvrante
    Dimensions fenêtre : 119 x 89 cm

    Divers

     

    Essence du bois : Épicéa (Sapin du nord)

    Traitement :non traité (prévoir un traitement insecticide et fongicide -type Xylophène-puis 3 couches de lasure ou peinture).

    Temps de montage : 2 jours à 2 personnes

    Dimensions dalle béton : 575 x 510 cm= 29,3 m² 

    Garantie 5 ans

    SAV Echange des pièces défectueuses

     

    Livraison LDD*                                                                       (*livraison direct à domicile)

     

    La livraison est réalisée par le biais d'un transporteur spécialisé. Le camion est équipé d'un chariot embarqué pour le déchargement. Avant livraison une prise de rendez vous sera effectuée par le transporteur.

    Délai delivraison: 35 jours

    Dimensions colis :  4 colis 6 m longueur x 1,2m largeur x 0,7 m Hauteur; 6x1,2x0,6 m ; 2,3x0,4x0,7 m et 2,3x0,4x0,7 m

    Poids: env. 2200 kg

     

  2. #Options de traitement#
    Nouveau!
    Option Traitement Bois

    - Garantie 5 ans sur le traitement bois.
    Le bois non-traité va devenir naturellement grisâtre et après un certain temps, il peut bleuir et moisir. Traiter le bois, avec un produit préventif, le protège efficacement contre les champignons et les insectes xylophages, y compris les termites. C’est pourquoi nous vous recommandons d’utiliser notre service de traitement.
    L'option traitement est disponible en trois coloris :
    marron, gris vintage et blanc translucide. Le traitement par trempage marron et gris vintage apporte en plus de la protection une couleur originale ,  pas d’entretien, pas de peintures ou de lasure à acheter pendant les premières 6 mois; en revanche le trempage en blanc translucide correspond à un apprêt nécessaire avant l’application d’une peinture.